Project Type : Restoration & New Intervention
Location :Mullaedong, Seoul, South Korea
Area : 151.8 m2
Role : Design, Construction
Status : Constructed

In Seoul, regions with their own history are formed through a framework. Munrae-dong was created as a steel complex as steel factories began in the mid-1970s. After more than 40 years of history, Munrae-dong, unlike other regions, has a unique identity of a steel complex and has reached the present without much change. Unlike other parts of Seoul, where there are many changes, time is concentrated in this neighborhood for a long time. It has a shorter history than the Hanok and other traditional areas that come to mind when you think of Korea, but considering that it has been in the last 40-50 years, it has maintained its shape for a very long time. It is a fact that everyone knows that the pace of modern development in Korea was very fast, but there are not many places that maintain the shape of a specific period of the 70s and 80s.
Most people think that Mullae-dong is a dirty and rough place. For that reason, it is also a place rarely visited unless people are involved in the steel industry. However, it is also one of the places where the sincerity, which I think is the most important element in art, and the modern state of Korea remains well, so it is more appeal to people and the unique beauty of Mullae-dong is different from other places. I wanted to make a small attempt to show it. This project’s client is myself. So I was able to plan from site selection to design and construction.


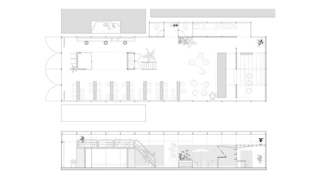
Vinyl-house is a Konglish(Korean English; Korean people use some english words in different meaning) of green house. Usually, when you think of a farmhouse in Korea, it is wide fields and green houses. Green houses in Korea have a unique style, and when Koreans hear the word ‘Vinyl-house’, they first think of a greenhouse. Greenhouse is a place where Koreans living in cities can escape from the desolation and find leisure. The direction of the project is to create a small oasis to observe and enjoy the unique beauty of Munrae-dong by contrasting the somewhat bleak image of the Munrae-dong steel complex with the image of a green house reminiscent of a farmhouse.
The steel-pipes frame of the space were supplied from local steal factory and the finish was expressed in transparent polycarbonate, which has better architectural durability than plastic. Because of the characteristics of the materials, a cold atmosphere can be created, so the solid walls are intended to be warm with masonry. Inside, there is no lighting other than a bar light. Inside, people are less susceptible to burdensome lighting interference. During the day, the space is brightened with natural light, and at night, the space is illuminated with external artificial light. At night, the walls of the existing ironworks complex are projected from the walls of the Vinyl-house by light, so you can experience a past and present of the ironworks complex in a roundabout way. In addition to the fixed table, inexpensive exterior furniture that can only be found in front of Korean convenience stores is included. I think it is a small gesture that expresses Korean emotions.
