Project Type : Restoration & New Intervention
Location : Citta Studi, Milano, Italy
Area : 2,231.3 m2
Role : Design

1. Misunderstanding of Rationalism
I confess that I only knew rationalism as being logical and efficient, and did not know the underlying meaning. By definition, rationalism is a philosophical approach that emphasizes reason over experiment or observation. I wondered what reason is, so I spent the last two months reading various types of books, including philosophy books, to find the origin of this word. From there, I learned that being rational is close to the opposite of being empirical. For example, in Plato’s concept of Ideas, he explains the difference between experience and reason through the allegory of people tied up in chains inside a cave for their entire lives. To them, shadows are the appearance of the world through experience, but knowing the actual world (Ideas) outside the cave is important. Here, philosophers like Plato are said to be the ones who have broken free from the chains and ventured outside. Many other philosophers have struggled to judge the truth of the information we gain through experience, and have sought to reach factual truth through rational thinking.
2. Architecture as Existence
When reading Albert Camus’ book ‘The Stranger,’ the protagonist, Meursault, gives the impression that there is a glass barrier between him and the world surrounding him. Although the protagonist and the world seem thoroughly separated, the world exists independently of him, and its existence has an almost absolute feeling. I have come to the realization that the existence of architecture within the world transcends all its values.
3. Contemplating the Meaning of ‘Transformation’ through John Locke
British philosopher John Locke (1632-1704) argued that one could be the same ‘man’ as before, but not the same ‘person.’ There is continuity in living humans as they develop throughout life. However, for Locke, the concepts of being the same ‘person’ and the same ‘man’ were very different. How could this be? He claimed that what makes us the same person over time is our consciousness, or our awareness of ourselves. If we look at a picture of ourselves as a child, we would undoubtedly say that the child is us, but not the same person. I applied this perspective to architecture and thought about transformation. A building has continuity as a ‘man,’ but it transforms in terms of its ‘person’ (program). For example, the Pantheon was initially built to please the gods. The building has stood there for over 2,000 years with seemingly no physical changes, maintaining its continuity. However, the current ‘person’ (program) of the building has become a cultural heritage site and tourist attraction. From this perspective, I believe the Pantheon has undergone a transformation.
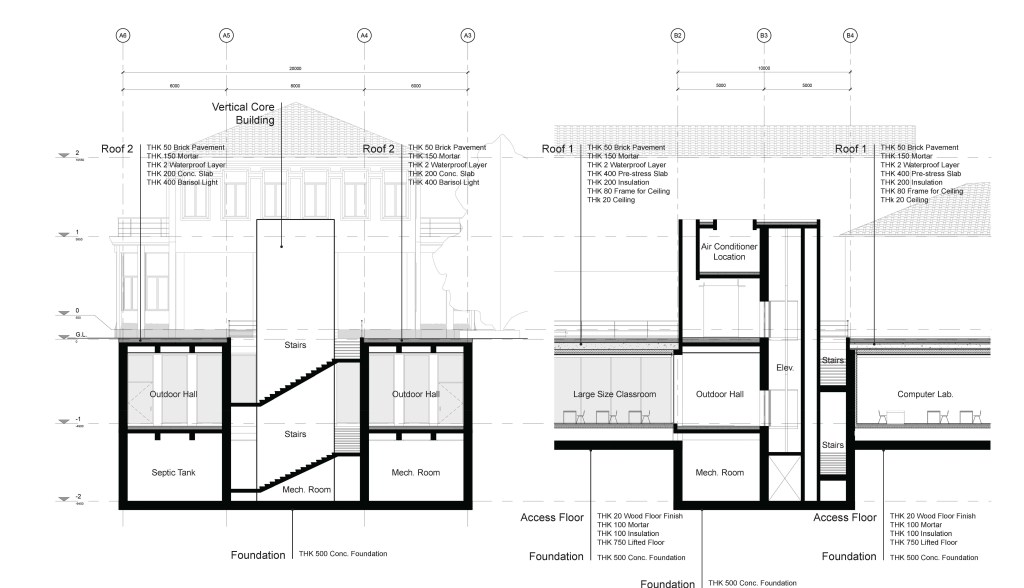
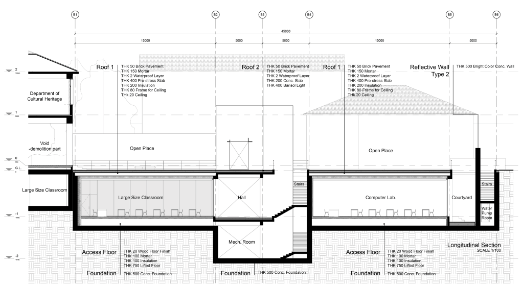
4. Demolition part and New intervention for heritage building

5. New intervention

This campus is like an animal. The characteristic of symmetry is prevalent among most animals. In contrast, while plants have some symmetrical aspects, they are often asymmetrical and follow certain patterns. From this perspective, when architecture becomes symmetrical, it gives a sense of liveliness. This site embodies such an animalistic nature. It is not precisely symmetrical, but it leans towards symmetry along the north-south axis. Such architectural symmetry is one of the strong features of this site. It echoes voices from the past and signifies implicit agreement. Such a strong architectural gesture could not simply be overlooked.
In this context, the Building 22090 is reborn alongside the new building back to its original center. The new building and this building receive the appropriate recognition they deserve. In particular, the core building that leads into the new building becomes centrally positioned within the entire campus, becoming a functional building while also establishing a new memory in people’s minds as a monument of the school. It is the moment of the birth of a new center. All these manners respect the existing symmetry and maintain balance by incorporating new volumes underground based on ground level zero.
Despite this overarching direction, during the process of detailed design development, I was greatly influenced by feedback from professors. Among them, one feedback that strongly resonated with me was, ‘Mamma mia, please do architecture. Not art.’ This feedback lingered in my mind for a long time. It was a crucial feedback as ideas transformed into concrete outcomes. This feedback significantly impacted the architectural expression and function of this project. Many aspects such as the interaction between the building and the ground, the relationship with existing buildings, and architectural expression were influenced by this feedback. Before receiving this feedback, there was a tendency for somewhat over-designed proposals. The boundary where the existing building meets the ground was emphasized, and the open space between the core building and existing buildings matched the height of the existing building’s ground level. This did not align with the natural placement of buildings. Professors specifically pointed out that aspect and provided feedback, which I interpreted as addressing fundamental architectural conditions within my scope of understanding. In many aspects of my thought process, these several rounds of feedback led to refinement and improvement. The outcome of this project reflects the results of these refined thought processes.



6. about vertical core building as a monument



7. about relationship between heritage building and new intervention


1 – The existing building and the new intervention are not structurally related directly, but they are adjacent to each other. The rule created by the existing building and new intervention in the site is emphasized the void of new building. This void actually bonds two buildings more sticky. People should pass by four columns to use main entrance door. The new stairs design manner is same with that of new intervention. It shows well relationship between the theme building and new intervention.
2 – During using the stairs, people face the new intervention facade and the heritage building through the opening of the reflective concrete wall.
